--------本公司不接受標單報價---有任何需要詢問之問題請撥打02-29395818--------
LOGO
購物專區 > 衛浴設備 > 馬桶 > 和成HCG > 和成HCG(馬桶) > 和成HCG(兩件式) > HCG和成 香格里拉系列 兩件式馬桶

HCG和成 香格里拉系列 兩件式馬桶 (編號:CS2130/CS2140)

香格里拉系列

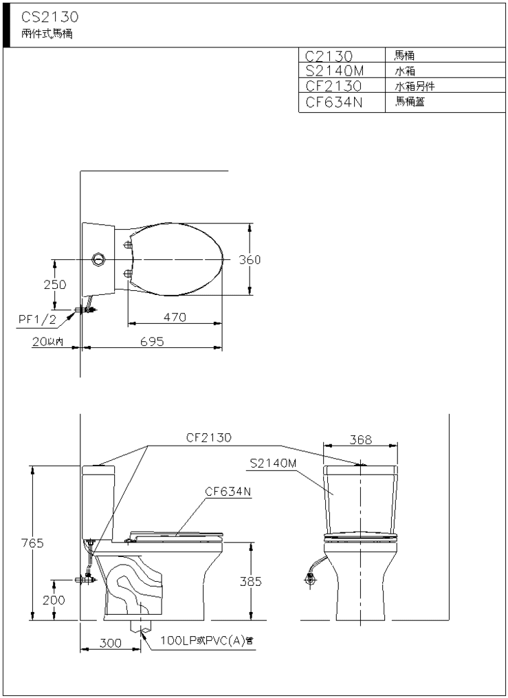
*CS2130
C2130馬桶
S2140MUT水箱(含配件)
CF634N馬桶蓋
-
*(CF2130水箱配件)

尺寸│C2130:695X360X385mm
尺寸│S2140:365X165X375mm

牆壁至排水管中心:300mm
適用水壓範圍:0.5~5kgf/c㎡

沖水量:大號4.8L 小號3L

可選購緩降馬桶蓋CF664D


沖水方式:噴射虹吸式
適用馬桶蓋尺寸:470mm

資料下載:
CS2130安裝尺寸圖.DWG
CS2130安裝尺寸圖.WMF

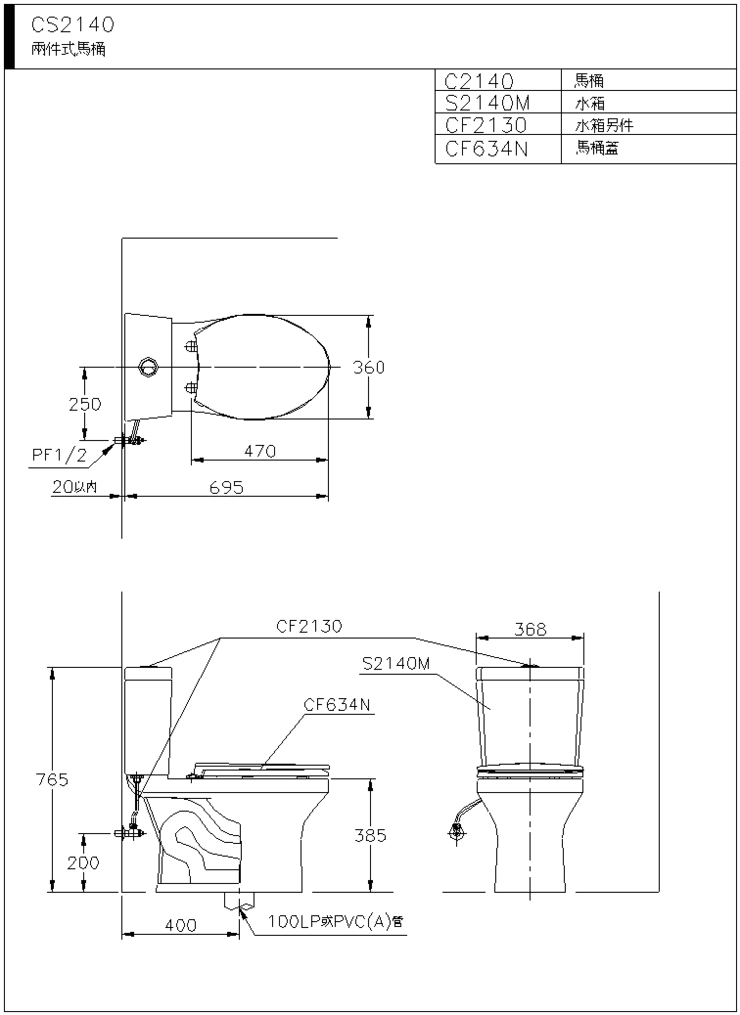
*CS2140
C2140馬桶
S2140MUT水箱(含配件)
CF634N馬桶蓋
-
*(CF2130水箱配件)

尺寸│C2140:695X360X385mm
尺寸│S2140:365X165X375mm

牆壁至排水管中心:400mm
適用水壓範圍:0.5~5kgf/c㎡

沖水量:大號4.8L 小號3L

可選購緩降馬桶蓋CF664D


沖水方式:噴射虹吸式
適用馬桶蓋尺寸:470mm


請先選規格
$1,700 - $15,700





分享到